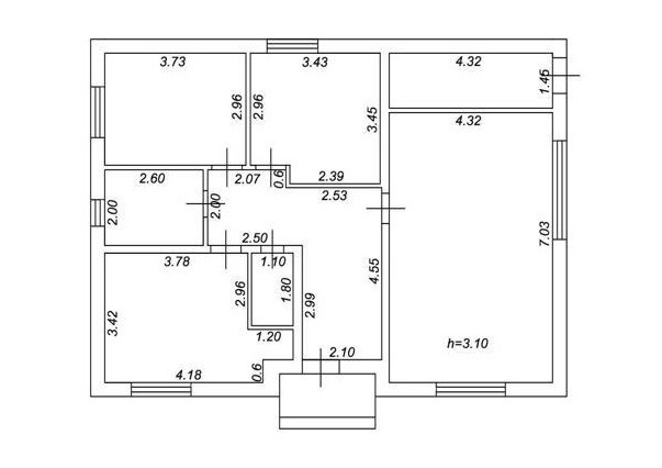
Продается дом, 117 кв.м., /1 эт

Обзор
Стоимость
11 000 000
Комнат в доме3
Категория землиСадоводство
Тип комнатраздельные
Кадастровый номер участка26:33:110117:511
РемонтЧерновая отделка
Тип отопления cianАвтономное газовое
Тип дома cianКирпичный
Тип строенияДом
Площадь, кв.м.117
Площадь участка, сот3
Этажность1
Материал стен Кирпич
Адрес
Населенный пунктПятигорск
Улицапереулок Колхозный
Номер дома76
Продается частный дом в Пятигорске 
 
— Дом кирпичный 
— Комнаты раздельные 
— Участок 3 сотки (в собственности)
— Все коммуникации центральные 
 
Звоните ПРЯМО СЕЙЧАС, пока ВАШ будущий дом не купил кто-то другой. Агентство недвижимости «Дом на Водах»

Расположение

Важно! На карте не всегда указано точное местоположение. Более точную информацию можно узнать у менеджера, разместившего объект